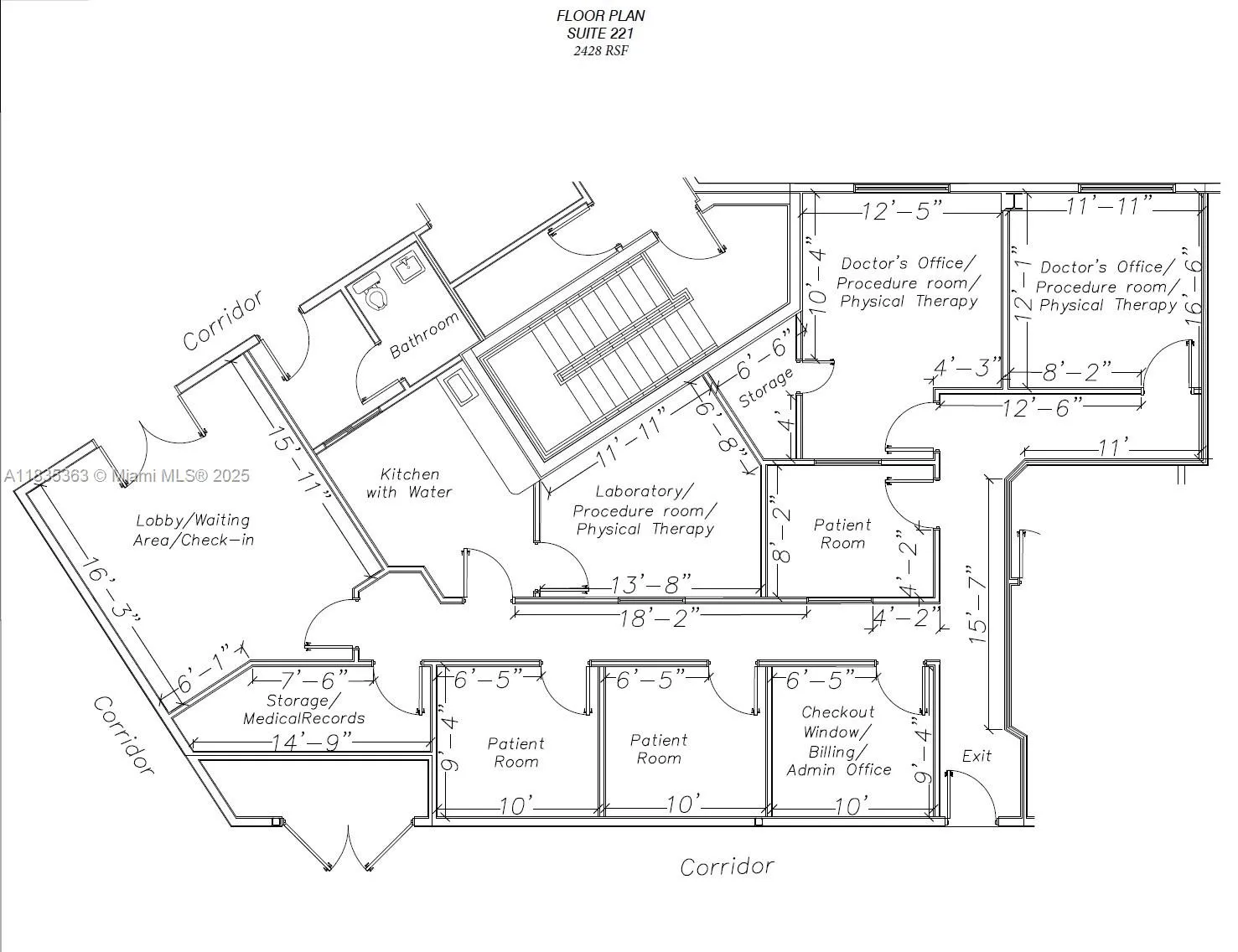
Property Description
The Aleman Building is a full-service professional and medical office property ideally positioned in the heart of Doral, one of South Florida’s most rapidly growing cities. Suite #221 offers approximately 2,428 RSF, making it an excellent fit for medical practitioners or professional service providers. The building offers outstanding accessibility with direct connections to the Florida Turnpike, Palmetto Expressway (SR-826), and Dolphin Expressway, and is just minutes from Miami International Airport. Employees and clients alike benefit from the building’s close proximity to premier dining, shopping, and lifestyle destinations, including Doral City Place, Downtown Doral, and surrounding amenity-rich corridors.
Features
- Parking Features
Address Map
- State:
- FL
- County:
- Miami-Dade
- City:
- Doral
- Zipcode:
- 33178
- Street:
- 10305 Nw 41st St 221, Doral, Florida 33178
- Longitude:
- W81° 38' 14.4''
- Latitude:
- N25° 48' 44.2''
MLS Addon
- Building Area:
- 65,785 Sqft
- Building Name:
- The Aleman Building
- Cumulative DOM:
- 851
- Internet Address Display:
- 1
- Internet Listing Display:
- 1
- Parcel Number:
- 35-30-20-053-0010
- Structure Type:
- Office
- Virtual Tour:
- Click Here
Commercial Lease For Rent
10305 Nw 41st St 221, Doral, Florida 33178, Doral, Florida 33178
127,791 Sqft
$48
MLS # #A11835363
Basic Details
- Property Type :
- Commercial Lease
- Listing Type :
- For Rent
- Price :
- $48
- Year Built :
- 2000
- Lot Area :
- 127,791 Sqft
- MLS # :
- A11835363
- Property Sub Type :
- Office
