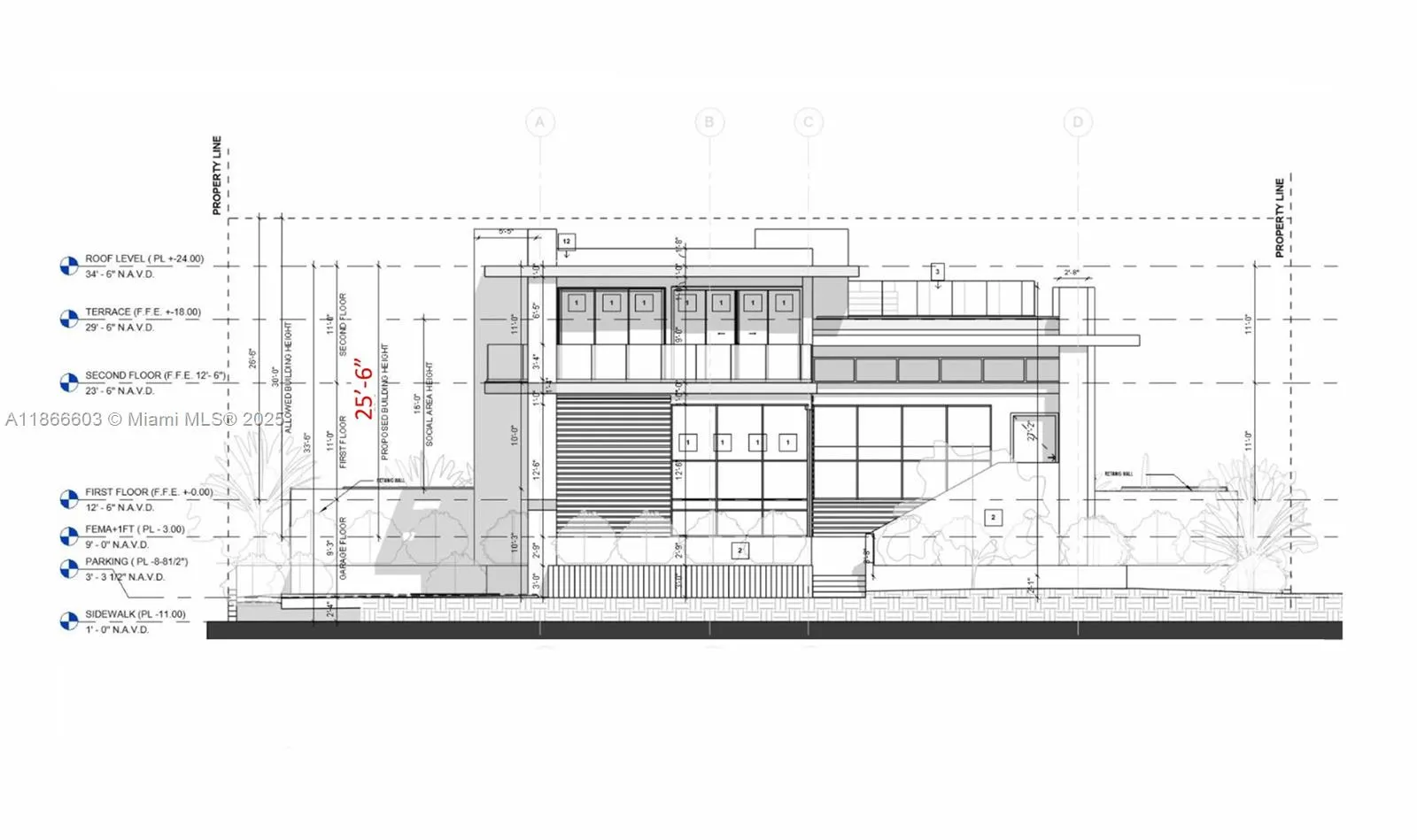
12,000 Sq Ft Lot at the desiderable neighborhood of Hollywood Lakes. Approved by Hollywood Historical Board for a new construction:
TOTAL A/C area = 5,676.73 SF PARKING FLOOR (A.C.) = 1,533.67 SF FIRST FLOOR (A.C.) = 2,718.07 SF SECOND FLOOR (A.C.) = 1,396.07 SF TERRACE LEVEL (A.C.) = 28.92 SF Garage and Parking total units = 5. Up to 12 parking units. Net Lot Area -12.100 SQFT – 0.277 ACRES Pool – 9×32 FT 6 bedrooms, 6 bathroom,1 half bathroom Terrace Rooftop.
Pre-construction for sale New Construction in Desirable Hollywood Lakes! This stunning 6-bedroom, 7-bathroom home offers 5,677 sq. ft. of luxury living. Approved by the historical board, it blends modern elegance with timeless charm. The open-concept design features high ceilings, a gourmet kitchen, and top-tier finishes.
- State:
- FL
- County:
- Broward
- City:
- Hollywood
- Zipcode:
- 33019
- Street:
- 813 Harrison St, Hollywood, Florida 33019
- Longitude:
- W81° 52' 44.4''
- Latitude:
- N26° 0' 40.5''
- Building Features:
- Other
- Cumulative DOM:
- 366
- DOM:
- 186
- Development Status:
- Site Plan Filed
- Direction Faces:
- South
- Internet Address Display:
- 1
- Internet Listing Display:
- 1
- Listing Terms:
- Cash, Conventional, Cryptocurrency
- Lot Features
- Parcel Number:
- 514214024580
- Subdivision Name:
- HOLLYWOOD LAKES SECTION
- Tax Annual Amount:
- $17,270
- Tax Year:
- 2024
- Virtual Tour:
- Click Here
Land For Sale
813 Harrison St, Hollywood, Florida 33019, Hollywood, Florida 33019
- Property Type :
- Land
- Listing Type :
- For Sale
- Price :
- $1,900,000
- Lot Area :
- 12,134 Sqft
- MLS # :
- A11866603
- Property Sub Type :
- Residential
