Property Description
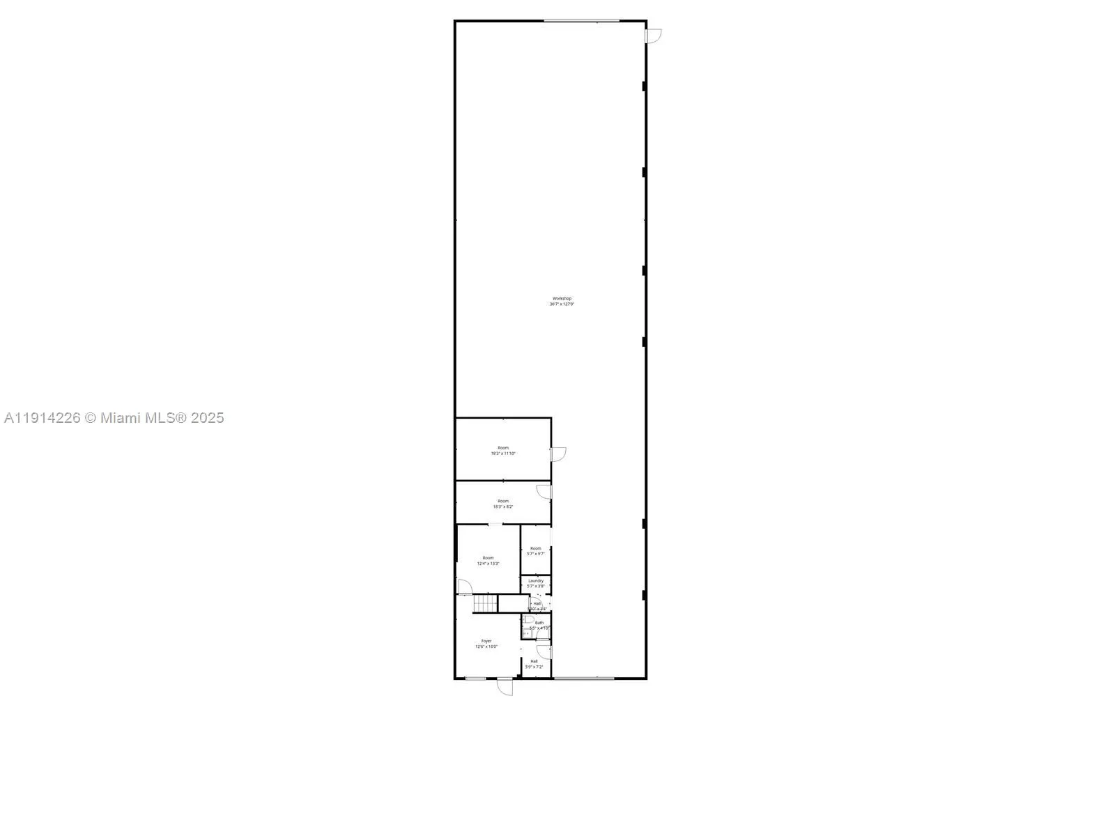
Nice, clean turn-key warehouse. Offering nearly 10,000 SF of versatile industrial space, this rare opportunity features two adjoining 4,900 SF bays within a standalone structure in a boutique industrial park. Constructed with durable twin-T concrete and equipped with 12’ roll-up doors, the building includes a partially open interior wall that allows easy flow between both sections. Located in Golden Glades Commerce Park—an established commercial condominium complex positioned at the crossroads of the Turnpike, I-95, 826, 441, and SR-9—the property benefits from exceptional regional connectivity. The park provides gated, fenced, and well-illuminated grounds with unrestricted 24/7 access.
Address Map
- State:
- FL
- County:
- Miami-Dade
- City:
- Miami Gardens
- Zipcode:
- 33169
- Street:
- 17535 Nw 2nd Ave 108-109, Miami Gardens, Florida 3
- Longitude:
- W81° 45' 15.8''
- Latitude:
- N25° 56' 31.3''
MLS Addon
- Building Area:
- 9,800 Sqft
- Cumulative DOM:
- 150
- DOM:
- 150
- Internet Address Display:
- 1
- Internet Listing Display:
- 1
- Parcel Number:
- 34-21-12-045-0080
- Structure Type:
- Warehouse
- Tax Annual Amount:
- $22,390
- Virtual Tour:
- Click Here
Commercial Sale For Sale
17535 Nw 2nd Ave 108-109, Miami Gardens, Florida 3, Miami Gardens, Florida 33169
$2,799,000
MLS # #A11914226
Basic Details
- Property Type :
- Commercial Sale
- Listing Type :
- For Sale
- Price :
- $2,799,000
- Year Built :
- 1956
- MLS # :
- A11914226
- Property Sub Type :
- Mixed Use
