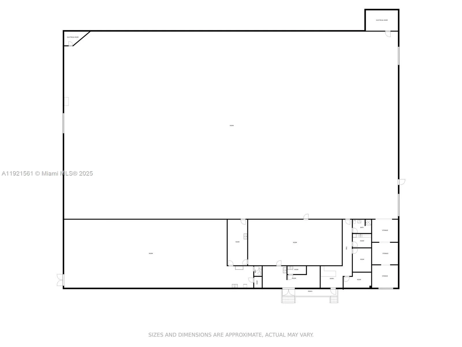
Discover an exceptional opportunity in this 2015, 35,796 sqft insulated steel building on 5-acre lot (4 useable). Investor or Owner Users welcome. It offers significant benefits including 26 ft high ceilings, a secure fenced lot, plenty of parking, powerful electrical systems, security system and lights. Electrical 800-amp 480/277 v three phase & (2) 400 amp 120/240v 3 phase system. Two dock height doors and three drive up doors. Additional white hurricane impact tents add an additional 6000-7000 sqft of useable space, rented MTM. With its prime location near the Turnpike, Homestead Air Base, and major distribution centers, your business will have unparalleled logistics access. Ample outdoor storage. Information deemed accurate but must be verified by consumer. Also for lease, can be divided.
- Security
- Parking Features
- Roof:
- Metal
- Sewer
- State:
- FL
- County:
- Miami-Dade
- City:
- Homestead
- Zipcode:
- 33033
- Street:
- 29055 Sw 107th Ave, Homestead, Florida 33033
- Longitude:
- W81° 38' 13''
- Latitude:
- N25° 29' 53.3''
- Building Area:
- 35,796 Sqft
- Construction Materials:
- Aluminum Siding
- Cumulative DOM:
- 70
- DOM:
- 76
- Electric
- Internet Address Display:
- 1
- Internet Listing Display:
- 1
- Listing Terms:
- Assumable,Cash,Conventional,1031 Exchange,Lease Ba
- Parcel Number:
- 30-70-05-000-0023
- Structure Type:
- Warehouse
- Tax Annual Amount:
- $40,044
- Tax Year:
- 2025
- Virtual Tour:
- Click Here
Commercial Sale For Sale
29055 Sw 107th Ave, Homestead, Florida 33033, Homestead, Florida 33033
- Property Type :
- Commercial Sale
- Listing Type :
- For Sale
- Price :
- $5,900,000
- Lot Area :
- 219,194 Sqft
- MLS # :
- A11921561
- Property Sub Type :
- Industrial
