Discover an exceptional opportunity to own a fully turnkey, freestanding restaurant in a prime Sunrise location. Recently renovated from top to bottom, this standout property is designed to impress both operators and guests. It features a complete commercial kitchen equipped with two walk-in refrigerators, a walk-in freezer, a grease trap, a hood system, and newer A/C units—allowing you to step in and start operations immediately.
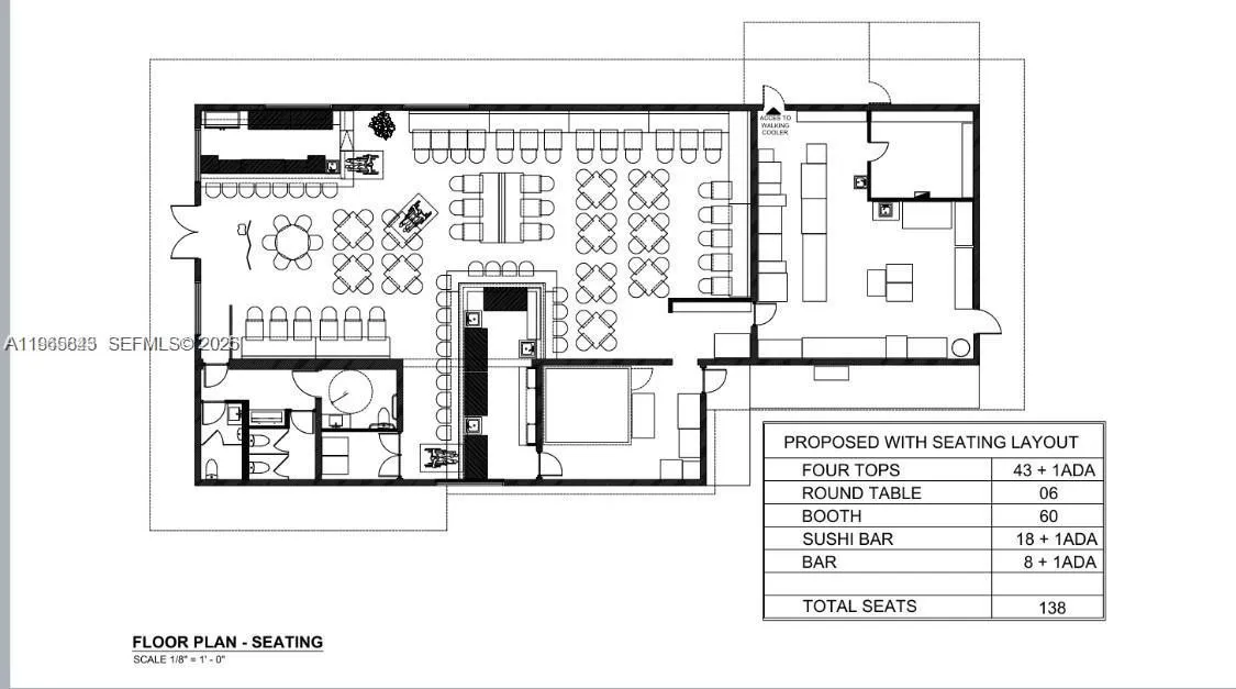
The ADA-compliant layout offers inviting, flexible seating areas, along with a full-service bar and a dedicated sushi bar, making it ideal for a variety of dining concepts. Positioned along one of Sunrise’s busiest and most visible corridors, the property benefits from high traffic counts, prominent monument signage, and ample on-site parking—delivering unmatched exposure and convenience.
This is a rare chance to secure a turnkey restaurant location that checks every box: visibility, accessibility, functionality, and style.
- Heating System
- Cooling System
- Parking
- Architectural Style
- Sewer
- State:
- FL
- County:
- Broward
- City:
- Sunrise
- Zipcode:
- 33322
- Street:
- 2220 N University Dr, Sunrise, Florida 33322
- Longitude:
- W81° 44' 34.9''
- Latitude:
- N26° 9' 8.3''
- Building Area:
- 4,066 Sqft
- Business Type
- Cumulative DOM:
- 3
- DOM:
- 3
- Internet Address Display:
- 1
- Internet Listing Display:
- 1
- Listing Terms:
- Cash,Conventional,Owner May Carry
- Parcel Number:
- 494128041183
- Tax Annual Amount:
- $22,857
- Virtual Tour:
- Click Here
Commercial Sale For Sale
2220 N University Dr, Sunrise, Florida 33322, Sunrise, Florida 33322
- Property Type :
- Commercial Sale
- Listing Type :
- For Sale
- Price :
- $3,000,000
- Year Built :
- 1981
- Lot Area :
- 19,249 Sqft
- MLS # :
- A11965843
- Property Sub Type :
- Business
