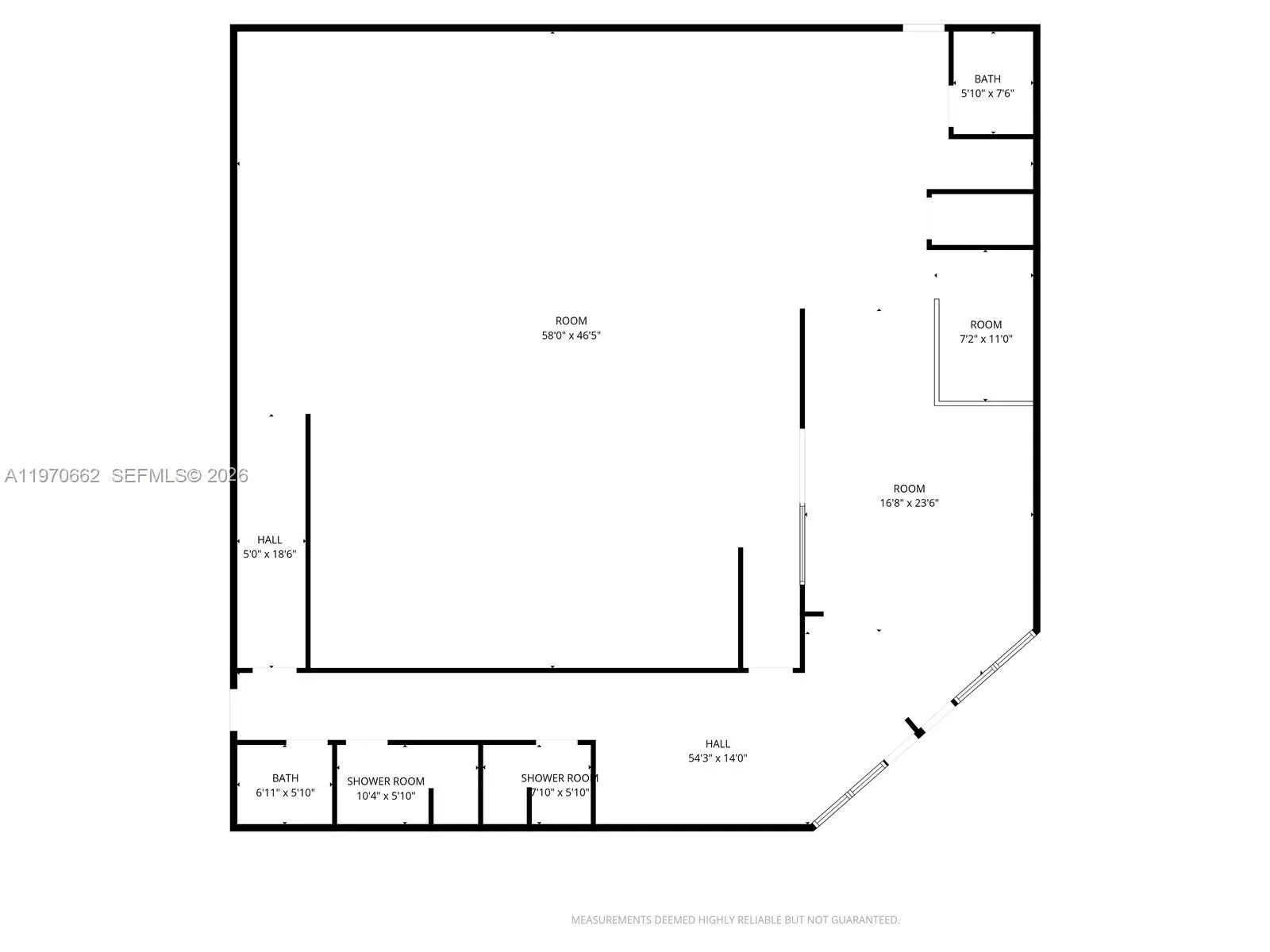
Turnkey boutique fitness studio for sale in a prime commercial location. Established in 2019, this well known gym specializes in cycling and functional training classes and operates out of approximately 3,600 SF. The business includes a fully built out space with extensive equipment, inventory, sound system, lighting, locker area, smoothie bar, and all FF and E needed to continue operations immediately.
Annual gross sales are approximately 210,000, supported by recurring membership revenue and an active smoothie bar generating additional income. Strong demand, consistent class attendance, and an established client base provide a solid operational foundation.
The studio offers 11 active classes including cycling and functional training, with a maximum class capacity of up to 40 participants. Cycling capacity offers significant room for expansion without additional build out. Functional training classes operate with strong utilization.
Strong brand presence supported by active digital marketing campaigns and an established referral base.
Business is being offered as an asset sale only. Existing lease in place. Remaining term and renewal options to be verified during due diligence. Ideal opportunity for an owner operator, fitness professional, or group seeking to acquire and scale an established fitness operation.
Confidential sale. Do not disturb employees or members. Showings by appointment only.
- Security
- Parking Features
- State:
- FL
- County:
- Miami-Dade
- City:
- Miami
- Zipcode:
- 33186
- Street:
- 12338 Sw 127, Miami, Florida 33186
- Longitude:
- W81° 36' 20.7''
- Latitude:
- N25° 39' 12.4''
- Business Type
- Cumulative DOM:
- 12
- DOM:
- 12
- Internet Address Display:
- 1
- Internet Listing Display:
- 1
- Tax Year:
- 2025
- Virtual Tour:
- Click Here
Business Opportunity For Sale
12338 Sw 127, Miami, Florida 33186, Miami, Florida 33186
- Property Type :
- Business Opportunity
- Listing Type :
- For Sale
- Price :
- $199,999
- MLS # :
- A11970662
