PERFECT LOCATION IN Miami – 100% RENTED | INCOME PRODUCING
3299–3297 SW 26th St, Miami, FL
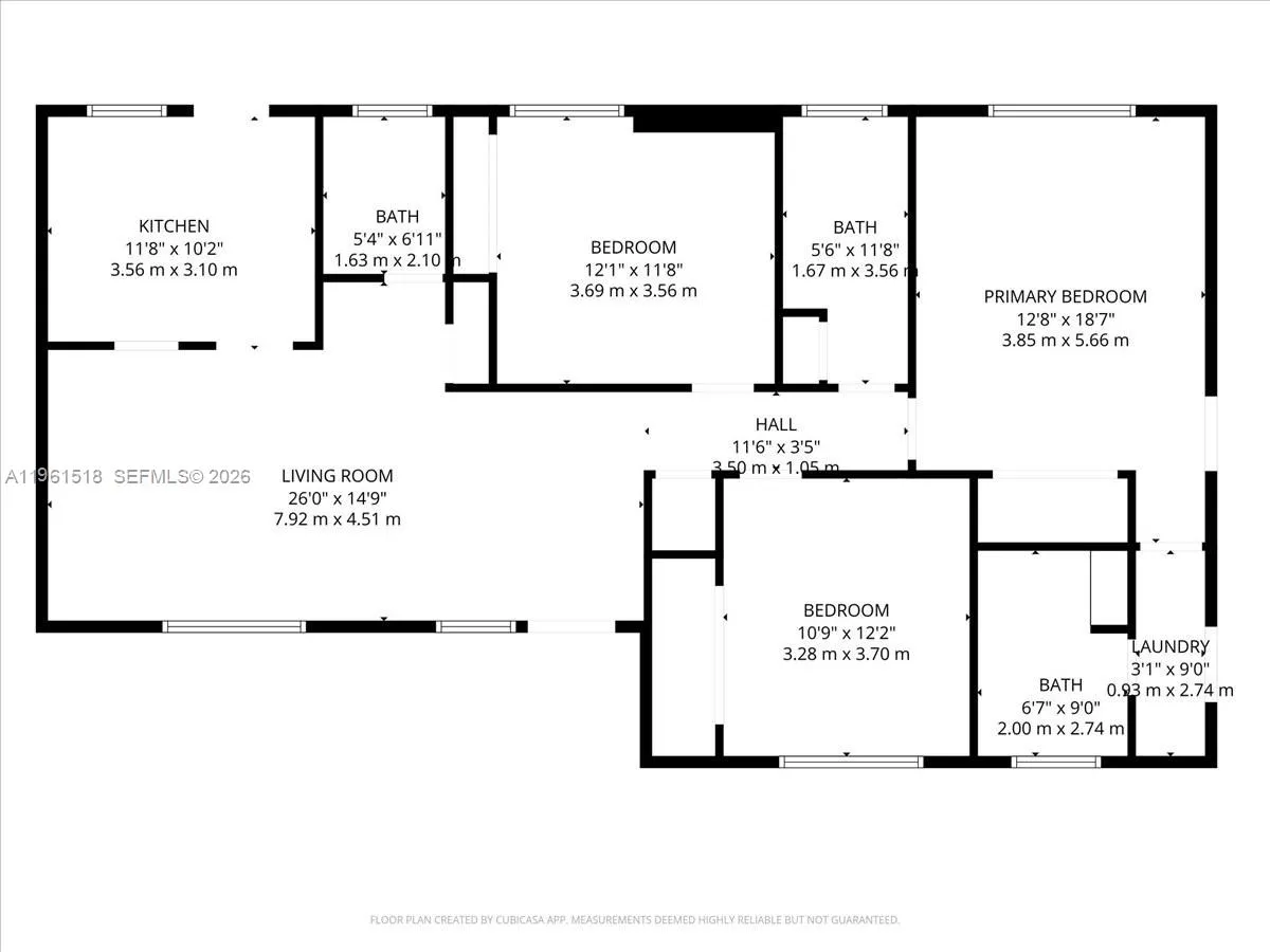
Exceptional turnkey investment opportunity in the heart of Miami. This fully rented duplex features 6 bedrooms and 5 bathrooms, including a 1-bedroom, 1-bath guest suite, 8 PARKING delivering immediate and stable cash flow.
Property highlights:
New roof (2026)
Impact windows (2022)
Separate electric and water meters
Private entrances
Updated kitchens and bathrooms
Functional, comfortable floor plans
On-site parking
Outdoor areas
Prime location near Brickell, Coral Gables, beaches, Hospital de Coral Gables, Aeropuerto Internacional de Miami, major highways, shopping, dining, and schools.
Ideal for investors seeking a fully occupied, low-maintenance property in one of Miami’s most desirable and centrally located areas.
- Swimming Pool
- Heating System
- Cooling System
- Parking
- Roof:
- Tile, Flat, Other
- Sewer
- State:
- FL
- County:
- Miami-Dade
- City:
- Miami
- Zipcode:
- 33133
- Street:
- 3297 Sw 26th St, Miami, Florida 33133
- Longitude:
- W81° 45' 7.8''
- Latitude:
- N25° 44' 36.3''
- Building Area:
- 2,343 Sqft
- Construction Materials:
- Block
- Cumulative DOM:
- 86
- DOM:
- 39
- Directions:
- GPS
- Exterior Features
- Flooring:
- Ceramic Tile, Vinyl
- Internet Address Display:
- 1
- Internet Listing Display:
- 1
- Listing Terms:
- Cash,Conventional,FHA,VA Loan
- Lot Features
- Parcel Number:
- 01-41-16-015-2920
- Subdivision Name:
- SILVER BLUFF HOMESITES
- Tax Annual Amount:
- $11,777
- Tax Year:
- 2025
- Utilities
- Virtual Tour:
- Click Here
- Window Features:
- Impact Glass
Residential Income For Sale
3297 Sw 26th St, Miami, Florida 33133, Miami, Florida 33133
- Property Type :
- Residential Income
- Listing Type :
- For Sale
- Price :
- $1,176,000
- Square Footage :
- 2,343 Sqft
- Year Built :
- 1954
- MLS # :
- A11961518
- Property Sub Type :
- Duplex
