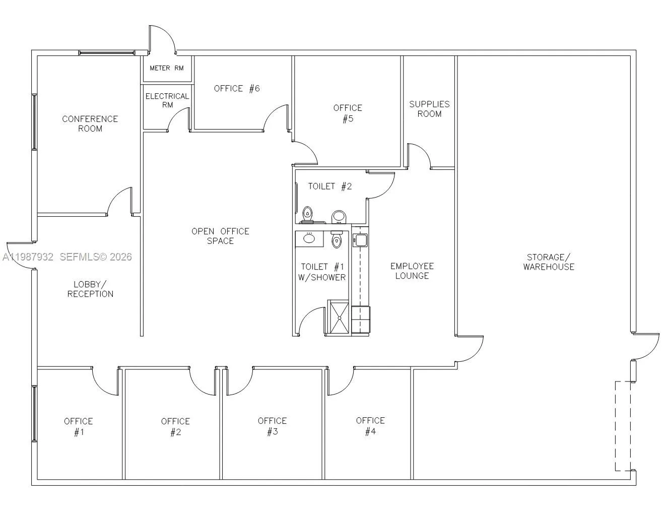
Exceptional end-cap unit featuring a welcoming reception area connected to conference room, 6 private offices, large open office floor plan, an employee lounge, supplies room, and warehouse area with 1 powered roll-up door. 2 restrooms, one of which includes a private shower, a practical amenity for active operational environments.
* Office/Warehouse Ratio ±68% / 32%
* 7 assigned parking spaces plus an additional space available at the rear roll-up door. The unit also benefits from direct frontage onto the shared guest parking lot serving the center.
* Newly installed 240/120V, 200-Amp, 3-Phase electric service, providing robust capacity for a wide range of business operations.
* 2 independent A/C systems provide full coverage and built-in redundancy.
* Impact-rated windows and storefront entry door.
* Insulated, hurricane-rated powered roll-up loading door for warehouse access.
* 10 year structural recertification completed in 2022.
BROCHURE AND FLOORPLAN ATTACHED
- Parking
- Parking Features
- State:
- FL
- County:
- Miami-Dade
- City:
- Doral
- Zipcode:
- 33122
- Street:
- 8119 Nw 33rd St 8119, Doral, Florida 33122
- Longitude:
- W81° 40' 19.8''
- Latitude:
- N25° 48' 18.5''
- Association Fee:
- $1,608
- Association Fee Frequency:
- Monthly
- Building Area:
- 3,381 Sqft
- Building Name:
- Airways International Center
- Cumulative DOM:
- 32
- DOM:
- 32
- Directions:
- Located 2 blocks South of Doral City Center.
- Electric
- Internet Address Display:
- 1
- Internet Listing Display:
- 1
- Listing Terms:
- Cash, Conventional
- Parcel Number:
- 35-30-27-064-0150
- Structure Type:
- Industrial
- Virtual Tour:
- Click Here
Commercial Sale For Sale
8119 Nw 33rd St 8119, Doral, Florida 33122, Doral, Florida 33122
- Property Type :
- Commercial Sale
- Listing Type :
- For Sale
- Price :
- $1,350,000
- Year Built :
- 1972
- Lot Area :
- 3,381 Sqft
- MLS # :
- A11987932
- Property Sub Type :
- Condominium
